邳州信息网

标题: 设计师爆改35㎡公寓房,让业主夫妻睡在“盒子里”,网友:够用了 [打印本页]

作者: 好家好生活    时间: 2021-8-12 12:14
标题: 设计师爆改35㎡公寓房,让业主夫妻睡在“盒子里”,网友:够用了
空间利用的关键:床底、墙面、角落,你都利用好了吗?

就算房子再小,也能打造出属于自己和爱人的专属地!

本次给大家分享是一套35㎡的公寓房,这里设计师将业主夫妻的床抬高了一米,然后让业主们“睡在盒子里”!
看过设计的网友纷纷直言:
网友1:这样设计空间能节省很多,其他空间都够用了:。
网友2:这样做空间真温馨。



35㎡公寓的盒子间
这里的“盒子”指的是设计师采用的“睡眠盒”设计理念,设计师将卧室床抬高了1米左右,上方变成了卧室,下方的柜体则拥有了更多的储物空间。储物和休息的空间在一定程度上重合,这让原本35㎡的空间拥有了更多的可能。






在“睡眠盒”中木质箱体嵌入了简单的灯具,在盒子里铺设了榻榻米,保证了整体起坐空间,也保证了睡眠舒适度。床底的柜体做成推拉的模式,存放和拿取都非常方便;通往“睡眠盒”的楼梯也是一个储物空间。这个设计在很多上下铺中颇为常见,当然这个设计很实用。






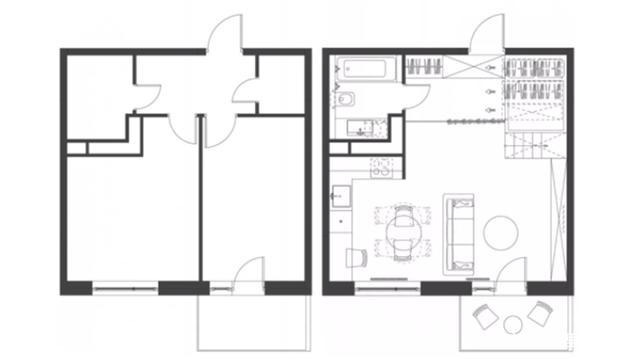
看过户型图中,我们能发现“睡眠盒”在房中的一角,不会占用很多地方,在房子中还有一片宽阔的起居空间。设计师能在这里发挥更多的创意,打造出舒适温馨的家居环境。所以,这个空间打造出了一个厨房、餐厅、客厅。
别小看这35㎡的空间,储物区和睡眠区的空间重合之后,设计还在其他区域也打造了储物空间,这显得其他空间毫不拥挤,确实非常实用又巧妙。果然一个小小的设计,能撬起大变化。
当然,这里要是房子本身层高不足3米,这个“抬高设计”自然显得不合适,在这样的情况下,我们还有2中设计方式能够达到相同的效果:
1、抬高40厘米,打造收纳抽屉






正常两夫妻的空间中,床铺高度超过40公分是可以接受的。不算床垫和床架的厚度,底部空间完全能打造成储物抽屉,最好抽屉朝外侧开,方便日常的取用。很多床的设计都利用上了床底部的空间,可根据自己的房间的大小选择适合的开合方式。
2、抬高80厘米,打造出衣帽间、工作区。



这里其实就有点像大学宿舍的设计,刚毕业的朋友们可直接上手,一点不适感都没有。这里的上铺变成了卧室,下方变成了衣帽间,与第一张图的设计相似。这个区域也能放下小书桌,打造成你自己的小天地,在这里工作休闲都是不错的。



说完这2个提高家中空间利用率的设计,我们可以选择合适自己的,最重要的是还是要考虑到自己的家居习惯,要是不喜欢低矮的家居环境,一定要慎重!
-END-

免责声明:文章部分文字、图片、视频等内容包括但不限于以上所提及来源于网络,如有侵权,请联系删除,版权归原作者所有。
本文至此就分享到这里了,希望这套案例给大家一些参考。欢迎在评论区发表你的看法,感谢阅读!




欢迎光临 邳州信息网 (https://www.pzxxw.com/) Powered by Discuz! X3.4