邳州信息网

标题: 他买下40㎡老破小,差点遭老婆家法伺候,摇身一变成最美学区房 [打印本页]

作者: 好家好生活    时间: 2021-10-18 16:59
标题: 他买下40㎡老破小,差点遭老婆家法伺候,摇身一变成最美学区房
一位先生,为了自己的学区房,买了一套70年代40平米的老破小房子,就因为这还差点被老婆罚跪。很好的是这套老旧的房子做的,却成了“最美的学区房”,真让人感叹“事在人为”!
现在就来看看这套最美学区房的前身和变化。
“旧屋原貌”




3㎡的厨房
厨房:只有3㎡大小,摆一张桌子就显得有些拥挤,特别不方便。



3X3的卧室
卧房墙面掉漆,各种老旧挂历报纸贴墙上,采光也只有一扇门,还必须打开才能透光。



这个角落应该叫厕所,不能叫卫生间,怪不得这个业主的老婆会生这么大的气。






这套房子虽然只有40平方米,但是有一个11平方米的露台,但是由于光线不好,整个后院和露台看起来都很脏。
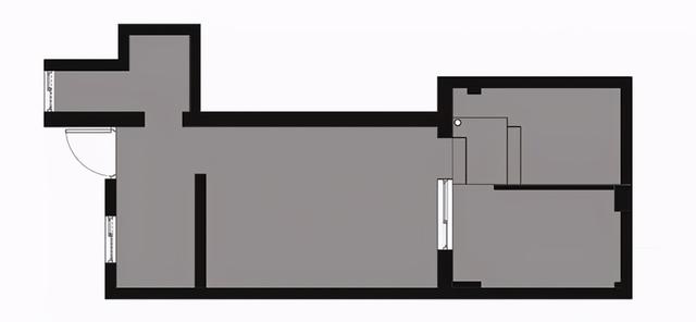
“改造”




重组前的户型



改造后的户型

通畅卧室与厨房,联通玄关、衣帽间、书房、客卧空间。
玄关处增加洗手台,改造脏乱的卫生间。
露台改为玻璃房,增加了厨卫功能。
【玄关】







增加了卫生间、鞋柜等功能。便捷,侧边还起到遮蔽视线的作用,暗含风水。
【书房与衣帽间】




原来3㎡左右的厨房空间,被改造成书房和衣帽间,在桌子上方增设了照明,让孩子在学习中能获得好的光线。与此同时,衣帽间也不会占用太多空间。
【卫生间】







原来的厕所已全部改造,前面增加了白色工字砖,大门也采用了谷仓门的设计,工业风十足。
【起居室和卧室】







这儿的卧室和客厅其实是同一块空间,设计师使用壁床,会客时收起壁床就有了沙发,休息时只需把壁床拉下来就成了卧室,就像电影里的场景一样自由变换。






【餐厅与厨房】










室外改成了玻璃阳光房,相对较大的空间,餐厅和厨房都有它的功能。也可以洗衣、晒衣服。做了玻璃屋顶的餐厅,晚上在漫天星空下吃饭,下雨时伴着雨声,很有情调。
[露台]




原来脏乱的小院经过粉刷和改造,已成为儿童晨读和烧烤的场所。原来的一个老破小,在设计师强大的头脑下,变成了令人羡慕的最美学区房,真让人羡慕。
本文至此就分享到这里了,希望这套案例给大家一些参考。欢迎在评论区发表你的看法,感谢阅读!
-END-

免责声明:文章部分文字、图片、视频等内容包括但不限于以上所提及来源于网络,如有侵权,请联系删除,版权归原作者所有。
最后分享,点击“下方蓝字”,免费申请让设计师为你家进行户型改造设计。
全国500位业主_申请免费设计名额




欢迎光临 邳州信息网 (https://www.pzxxw.com/) Powered by Discuz! X3.4