邳州信息网
标题:
北京一家6口的50㎡新家,布局改造堪称绝绝子,全家觉得宽敞
[打印本页]
作者:
好家好生活
时间:
2021-10-27 19:32
标题:
北京一家6口的50㎡新家,布局改造堪称绝绝子,全家觉得宽敞
50平米的房子在一般人眼里真的太小了,小两口居住也才算是舒适,哪怕再多一个孩子,也会觉得拥挤。
这起案例来自北京的一名业主,由于在准备好要二胎后,这50平米的空间不仅要满足四口人的居住需求,而且还增加了女方父母来住的问题。在家长们的帮助下,两人可以全身心地投入到工作中,赚更多的钱。
因此,面对现状,新房必须进行改造。本次案例改造后的空间效果堪称绝绝子,在满足一家六口居住的前提下,能让全家人感觉到宽敞。接下来我们就来看一看这套北京一家6口人的50㎡!
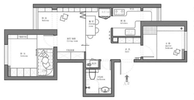
平面设计图
往里缩成40厘米,解决了进门后的鞋柜和自然玄关区,使空间的动静分离。
厨房采用开放式设计,侧开一个门洞,增加空间的延展性和通透性。
整体底层橱柜延伸至室外阳台,增加收纳空间。
洗手间还进行了缩孔处理,增加了洗衣机的位置,改变了原有卫生间的布局。
起居室采用功能性定位,兼备餐厅、书房、休闲、亲子区和次卧的功能。
北居室划分为主卧,南卧室为儿童房,兼备父母居住需求。
玄关
在厨房内退后,采用内嵌方式设置玄关鞋柜,同时采用不拉手的按压式开关设计,避免视觉突兀感,保证空间的平整度。鞋柜子超大储物容量,更满足家庭的储藏需求。
客厅和厨房区域的地面用地砖铺贴,功能区的地面抬高铺上实木地板,增加舒适度。这种设计自然地区分了区域。
地砖的区域一直延伸到卫生间前,在卫生间门洞旁利用墙壁的后退空间,规划了一组增加收纳柜,将洗衣机藏在里面。在日常生活中不使用洗衣机时关上柜门,不会让视觉产生突兀感。
主空间
原来的客厅是比较常规的设计,业主考虑到电视的功能实在太鸡肋,所以在改造后采用功能定位。该空间的主体可以转换为餐厅、书房、休闲区、亲子区和临时客房。
一组超大书柜,藏有露的设计,让空间充满了设计感,也让书架告别了单调与呆板。为了让孩子们有一个很好的阅读兴趣,把各种各样的书放在书架上,这样做是为了让孩子有一个好的阅读兴趣。
同理,在小户型中,收纳空间也很重要,一组内嵌式大衣橱被设计在地台的另一边。这是全家人衣服的“家”,收纳几乎家里所有的床品和衣服,十分实用!
餐厅
主楼内有一张小方桌,这里没有标准的餐厅,整体是以满足全家人的需要为首要要求。因此,这里的小房桌即是餐桌也是办公桌还是日常使用的“茶几”。
厨房
厨房被重新设计,玄关处的地砖延伸到空间中。一字排开的柜子已经在舒适和使用之间取得了平衡,没有多余的空间被利用。柜子还延伸到原来小阳台的空间上,就这里的储物空间还是不错的。
卫浴间
卫浴间在改造后空间内退了一些,但布局则更为简洁。古老的黑白小地砖使这里显得摩登感十足。悬垂的胎盘和悬吊式马桶使卫生间的卫生死角较少,在清洁时会变得特别轻松、方便。
主卧室
北向房间为主卧,高箱床与墙壁相连,在最大化利用空间的前提下,增加一组衣柜,以满足日常收纳需要。
儿童房
南部需要住4口人,这里原来是大卧室的空间。那里有充足的光线,有利于老人和儿童的居住。空间上,利用榻榻米加上双层上下床,满足居住需要。与此同时榻榻米还有很好的收纳力,虽然看上去有点拥挤,但是解决了基本需求。
就总体而言,在有限的面积内,满足了多功能的同时还具有空间感,这对设计也是比较中规中矩的。说到底,能在没有大改的情况下保证宽敞,真的挺难的。
本文至此就分享到这里了,希望这套案例给大家一些参考。欢迎在评论区发表你的看法,感谢阅读!
-END-
免责声明:文章部分文字、图片、视频等内容包括但不限于以上所提及来源于网络,如有侵权,请联系删除,版权归原作者所有。
最后分享,点击“下方蓝字”,免费申请让设计师为你家进行户型改造设计。
全国500位业主_申请免费设计名额
欢迎光临 邳州信息网 (https://www.pzxxw.com/)
Powered by Discuz! X3.4