邳州信息网

标题: 豪宅坐拥世界级夜景,4房1厅2卫,面积却仅有89㎡ [打印本页]

作者: 好家好生活    时间: 2021-11-13 06:50
标题: 豪宅坐拥世界级夜景,4房1厅2卫,面积却仅有89㎡
维多利亚港(Victoria Harbour),位于中国香港特别行政区的香港岛与九龙半岛回见的海港,拥有“世界三大夜景”的美誉。



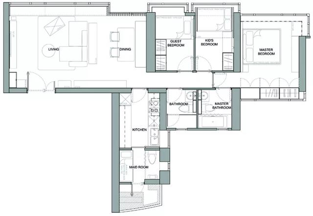
这次分享的案例来自香港,这里寸土寸金。业主拥有一个89平米的海景房,足以让这套房成为豪宅。原公寓靠近维多利亚港,180度的海景,视野和采光极佳。



面积:89平方米
房屋类型:4室1厅2卫
居民人数:4人,3大1小。
起居室

当你进入房子,你可以看到宽敞的客厅,简单的原木风格的橱柜和长板凳创造了一个完整的玄关功能。电视墙的大理石材质给整个空间一种硬朗的氛围。凸窗的浅蓝色镶边让整个美景看起来像一幅画,与不同层次的美相匹配。客厅简单配备了布艺沙发和原木茶几,宽敞的空间给了助理柔软和谐的舒适感。



89平方米的豪宅,由4房1厅2卫,可180度俯瞰维多利亚港。



餐厅

餐厅与客厅之间用布艺沙发隔开,宽敞的横厅里有一部分空间作为餐厅。沙发后面做了吧台,可以满足一些收纳需求。






靠墙的一侧做了一个舒适的摊位,可以容纳更多人的用餐。展台下有悬挂设计,但没有储物设计。这是为了方便日常清洁。



在这样一个横厅里,餐厅和客房的一体化设计,加上一扇大窗户,可以让整个空间享受到“世界三大夜景”的迷人夜晚。
厨房

厨房做了一个直柜,一边是中式炉灶,另一边是西式烤箱。功能非常齐全,上部空间做成了吊柜。纯白色也让空间更加舒适宽敞。



卧室

卧室的景色很好,早晨的阳光可以充满整个卧室。不过卧室的面积略小,所以用多功能柜作为床架,下面可以放置杂物,营造出灵活的卧室空间。



第二间卧室、床和柜子设计风格一致,用不同的灯光丰富了每一个细节,整个空间的每一个家都被悬挂起来,给整个房间一种轻盈感。



第三间卧室也是功能房,兼具储物和客房功能。床上有储物柜,床板下有储物空间。家里需要这样一个整理杂物的空间,整个空间的存在让其他房间有了干净的空间。



这套房整体效果轻盈舒适。虽然不是室内设计没有太多光彩的地方,但这样的豪宅外观真的很棒。就像很多人说的:“面朝大海,春暖花开”,有多少人梦想这样的套房.
本文至此就分享到这里了,希望这套案例给大家一些参考。欢迎在评论区发表你的看法,感谢阅读!
-END-

免责声明:文章部分文字、图片、视频等内容包括但不限于以上所提及来源于网络,如有侵权,请联系删除,版权归原作者所有。
最后分享,点击“下方蓝字”,免费申请让设计师为你家进行户型改造设计。
全国500位业主_申请免费设计名额




欢迎光临 邳州信息网 (https://www.pzxxw.com/) Powered by Discuz! X3.4