邳州信息网

标题: 她的132㎡亲子宅,刚进门就被迷住,全屋干净整洁让人羡慕 [打印本页]

作者: 好家好生活    时间: 2022-2-3 10:31
标题: 她的132㎡亲子宅,刚进门就被迷住,全屋干净整洁让人羡慕
第一次看到她132㎡的房子,一进屋真的被迷住了。青花色调的运用就像一件精美的艺术品,就像青花瓷一样,制作精美,美轮美奂。这只是开胃菜。当你到达餐厅公共区域时,你会发现她的房子虽然没有造型,但在裁剪复杂、简化细节的设计下,整个房子干净整洁到了令人羡慕的程度。真的很美,竟不自禁想晒晒。



项目地址:台北
项目设计:知域设计
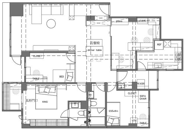
房子位于台北市大安区,其实已经有40年的历史了。这样装修的原因是业主想给女儿提供一个更好的居住环境。因此,房子的设计不仅整合了成年人的居住需求,还让孩子参与到整个家庭的建造过程中,所以可以说这个房子是一个家庭的房子。至于公寓布局,三间卧室加一个书房工作区。



玄关

玄关蓝白色调的运用,让人一进门就享受到一种美。需要补充的是,考虑到入户门正对客厅沙发,不利于隐私,对面安装了带换鞋凳的隔断。此外,为了防止新形成的独立玄关采光过暗,除了利用蓝白来提亮空间外,还在隔断顶部预留了无盖玻璃隔断,从而将光线引入室内。地面其他瓷砖和左边鞋柜实用美观。
客厅




客厅的装修并不复杂。例如,背景墙没有任何形状。如果在没有主灯的情况下直接将天花板展平,两者叠加会有一种干净的氛围。这时,配合出色的灯光和高价值的软装家具,会有简约却不简单的迷人效果。



电视机定制了一个底部悬空的L型橱柜。优点是不留干净死角,空间灵活,可以避免粉刷墙壁的单调。此外,橱柜本身的收纳功能使得布局完美。



视角向右移是一个阳台,屋主的阳光温室无疑为这个家注入了更多的生机和活力。



电视墙的粉色调、地面的木色、顶面的白色、隔断点缀的蓝色、沙发墙的灰色在整个色系上是相似的,不会有突兀感。反而营造出微甜莫兰迪的基调,就像夏天啜饮一口冰淇淋,清爽微甜的感觉立刻涌入脑海。难怪孩子喜欢。
餐厅




餐厅的布局比较简单,可以直接搭配相应的餐桌椅来做。但是,业主在选择产品方面做得很好。大实木板加两把矮椅和一条长凳的餐桌实用美观。



需要补充的是,由于横梁的限制,餐厅的层高已经降低到只有2.12米。为了减少压抑感,除了通过粉刷顶面来扩大视觉空间外,透明推拉门的上部也布置在对面工作区,这样效果会好很多。



站在餐厅看着客厅。



然后反方向是顶天立地柜。原来公寓的这一部分其实什么都没有,只是屋主为了定制鞋柜,有这样一个两边都有储物区。
厨房




来到厨房,为了驱散夏天做饭的闷热感,在左上角的空间安装了一个悬挂式空调,这样风就不会吹到灶具上,带来安全隐患。如果装修本身是U型结构,毕竟利用率高。例如,除了右控制台之外,还形成了左家电区域。有了明亮的空间环境和干净整洁的氛围,我相信在这样的厨房里做饭会让我感觉更放松。



学习工作区

这是学习工作区的角落,可以用来满足全家人的办公或学习需求。因为女主人喜欢做手工皮具,所以她在对面放了一台缝纫机,分区存放区正好用来展示这些“成果”。



主卧

主卧延续了之前的装修风格,整洁简约大方,色彩优雅,有治愈的力量。需要补充的是,粉色半高墙板与床头靠背采用一体式设计,结合底部悬空不留干净死角的床头柜,再围合形成一个整体,实用美观,层次分明。









床尾是定制的衣柜,无把手结构就像是装饰面板装饰的背景墙,看起来有些别扭。
次卧

这是大女儿的房间。为了突出活泼的氛围,业主们在床头墙上用不同的色块绘制组合成山形图案,具有童话般的梦幻效果。如果装修的话,选择单人床将卧室的床靠着墙角摆放,这样左边的储物区和右边的书房区就可以释放出来。



第三间卧室是小女孩的房间。



最后是客卫,效果干净整洁,应有的功能都没有丧失。



本文至此就分享到这里了,希望这套案例给大家一些参考。欢迎在评论区发表你的看法,感谢阅读!
-END-

免责声明:文章部分文字、图片、视频等内容包括但不限于以上所提及来源于网络,如有侵权,请联系删除,版权归原作者所有。
最后分享,点击“下方蓝字”,免费申请让设计师为你家进行户型改造设计。
全国500位业主_申请免费设计名额




欢迎光临 邳州信息网 (https://www.pzxxw.com/) Powered by Discuz! X3.4