邳州信息网

标题: 北京姑娘的44㎡小窝走红,第一眼就让人感叹:一个人住是真的舒服 [打印本页]

作者: 好家好生活    时间: 2022-3-11 09:48
标题: 北京姑娘的44㎡小窝走红,第一眼就让人感叹:一个人住是真的舒服
独居人群买房、租房扎堆,北上广深重“孤单指数”最高,20~49岁是当前城市独居的主力人群,占比高达64.2%,并且城市独居人口中,20-39岁群体占比近五成,他们的独居状态一般会持续较长时间。数据来源:贝壳研究院《新独居时代报告》



上面报告中,形容北上广深重的独居大多是“孤单”,但是本次分享的案例却让人觉得一人住是真的舒服,让我们一起来看看。



在北上广深这四个一线房价高的城市,大龄单身女性越来越多,这一次的案例来自一位北京姑娘,31岁的她拥有一套44平米的小公寓,这套公寓的图片小火了一把,只看一眼就被一位北京姑娘的小户型所吸引。
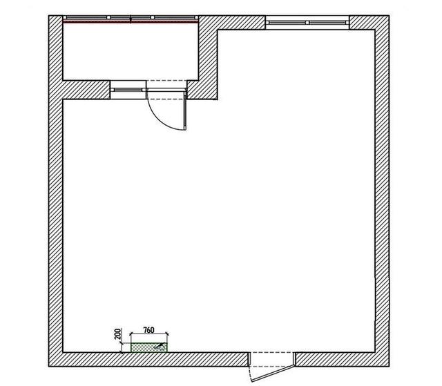
平面图




该公寓原户型非常方正,除了一个室内阳台,其他均为开放式布局。房主想在有限的预算下创造一个与众不同的房子。设计人员在进行了一些改进后,重新布置的图如下:



设计表示,要想在有限的预算下创造出一种时尚的环境,最好的办法就是运用色彩,于是设计师与业主进行了多方面的沟通,最终定下了一些改动(用色彩直接看图)。
内设新的隔墙,布置若干功能区(厨房、卫生间、客厅、卧室、玄关)
玄关




黑白开放式鞋架方便换鞋,兼顾了换鞋凳的功能。墙壁用几块木纹板装饰,按上挂钩就能放一些包包钥匙等小东西。黑黑的金属挂衣杆,像一个框架,设计感十足。



由左边看去大理石纹路的地砖和绿色的卫生间墙面让人有一种清新舒适的感觉。鞋架旁边有另一功能柜,下嵌有洗衣机,上方用来收纳衣物、洗衣液等,移动线十分清晰简单。
衣帽间




行李箱在左边的玄关,玻璃镜面设计,让空间大了许多也可用作穿衣镜,出门前一转头就可以整理着十分方便。采用带盖结构的移门设计,节省空间。
洗手间




洗手间采用了挂壁式马桶,上面布置了台面,可以放置日常用品,节省了空间;台面上方设有收纳式壁柜。淡紫与淡绿的搭配十分惊艳,轻松中又安静。



澡盆和背景的蓝色墙砖让卫生间显得时尚大气,一眼就有惊艳的感觉。由于没有分隔,浴室柜采用了悬空设计,防止潮湿。浴巾架电毛巾架方便实用。
厨房&餐厅




厨具为半开放式形式,喜欢爆炒的朋友可以装上推拉门。一字型的柜子简洁方便,牛油果绿的柜子与浅绿色的墙壁配合得很默契,整体看起来清新舒适!






拐角处的银色冰箱很好看,窗台上有置物板,用来摆放绿植和装饰都很不错,餐椅采用了温莎椅和现代椅做点缀,让视觉上充满跳跃的元素。
客厅




起居室的墨绿色沙发融入整个白色空间,亮点十足又不喧宾夺主,空间显得自然。一块红铁茶几让冷淡的感情少了很多。



木元素地板,木质隔断设计,还有电视柜,让空间中的元素更加多元化。半边木质隔断上种上了绿植,即绿色的延伸也是室内生机的完美融合。电视机背景墙与办公区域隔开,隔断而又宽敞。
办公区域




隔墙对面是办公区,一张原木简朴的桌子,白色的大衣柜,宝蓝色的绒面椅,空间简约舒适。
卧室




卧房在隔断后,隔断还可以起到背景墙的作用,灰色床品与木色搭配舒适,简约而大气,一张柔然舒适的大床可以让人消除一天的疲劳。
阳台




一看这把椅子就觉得很有年代感,想起小时候家里的靠背椅。地板上的格子砖有了复古的气息。露台还设有大橱柜,满足主人额外的储物空间。



另外一边的墙上安装了一个钢框架,这样可以把人们的衣服挂起来,也可以拿来做运动。
本文至此就分享到这里了,希望这套案例给大家一些参考。欢迎在评论区发表你的看法,感谢阅读!
-END-
免责声明:文章部分文字、图片、视频等内容包括但不限于以上所提及来源于网络,如有侵权,请联系删除,版权归原作者所有。
最后分享,点击“下方蓝字”,免费申请让设计师为你家进行户型改造设计。
全国500位业主_申请免费设计名额
作者: 嘎嘎    时间: 2022-3-11 09:49
你确定那个不是她男朋友的引体向上架吗?[抠鼻]
作者: A_Port_M    时间: 2022-3-11 09:49
看看行,但是我告诉你实际住上空间根本不够[泪奔][泪奔][泪奔]




欢迎光临 邳州信息网 (https://www.pzxxw.com/) Powered by Discuz! X3.4