邳州信息网

标题: 发现一对退休夫妻的35㎡小家,小巧却又温馨简单,忍不住晒晒 [打印本页]

作者: 好家好生活    时间: 2022-5-15 08:46
标题: 发现一对退休夫妻的35㎡小家,小巧却又温馨简单,忍不住晒晒
对于现在的人来说,五六十岁将是一个舒适的年龄。孩子长大后,有了自己的家庭,可以享受自由的退休生活。



本期这套公寓的主人是一对52岁的退休夫妇。他们的退休生活是住在35㎡的公寓里。看起来很小,但是简单温馨,可以看到北京的风景。这种生活状态叫安静舒适。或许,这也是你期待的自由退休生活。
本案坐标:北京市朝阳区。业主是一对52岁的中年夫妇,都退休了,女儿嫁到了北京。为了能见到女儿,他们卖掉了房子,选择在北京生活养老。买了一套房,实际面积35,面对望京soho公寓。



现在的夫妻生活叫潇洒。主人的叔叔喜欢晨跑,去公园打太极。业主阿姨喜欢跳广场舞,喜欢和新邻居合影。生活真的很安逸,令人羡慕。
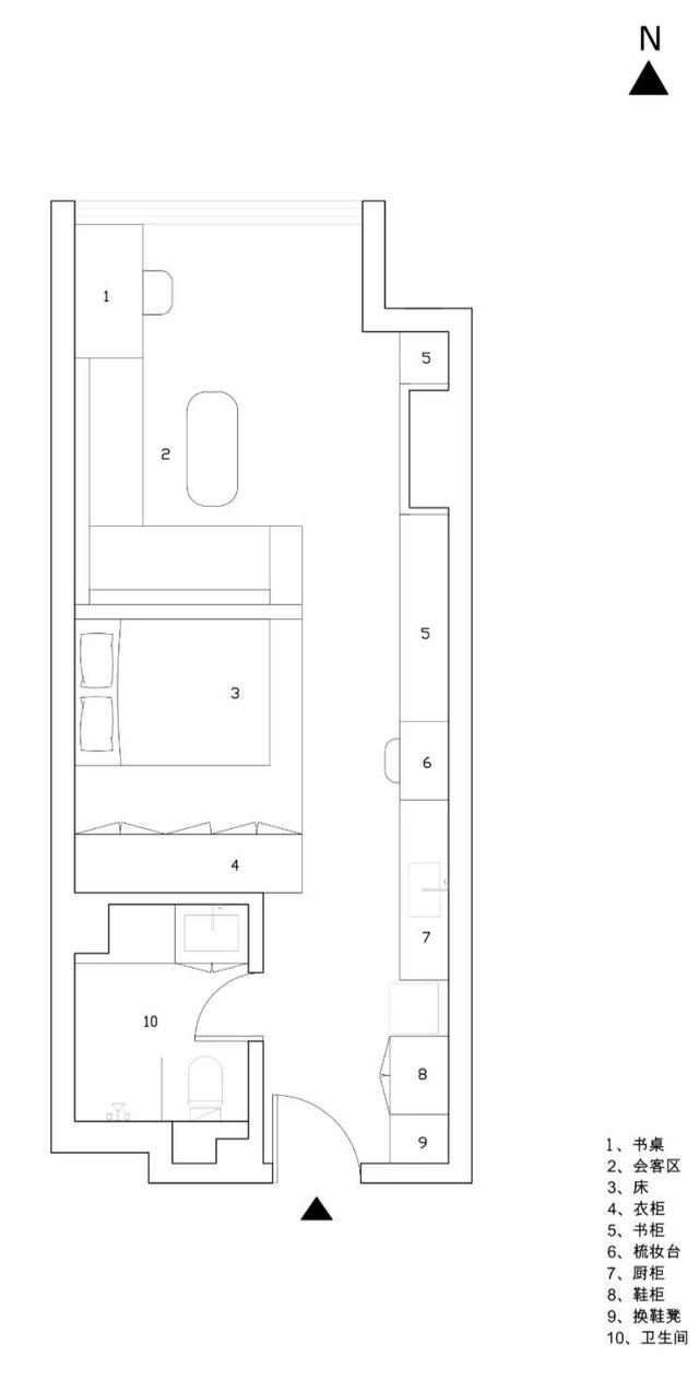
户型布局




在这种情况下,公寓是一个单一的条形空间。房子朝北,面积小。整栋房子只有一扇窗户。为了让业主夫妇的养老生活更加宽敞明亮,设计师@付丝雨老师 拆掉了多余的墙体,以不同立面的形式划分了功能区。
整体空间区域分明。一进门就是放鞋子和凳子的鞋柜。在右边,是浴室。一进去就是衣柜和橱柜。客房厨房都布置在这个区域。
全屋刷上一层清新自然的绿色,并点缀米色和原木色,营造出干净舒适的空间感,更符合中年夫妇的审美。
装修难点




这种情况下只有一个落地窗,没有其他窗户。所以,如何利用这个窗户,成了装修中的一个难点。好在这个落地窗视野极佳,对面是望京soho。
每当夜幕降临,灯火通明的北京让主人和他的妻子更加享受独特的城市生活。



玄关

玄关是狭窄的走廊,布局上看起来干净大气。一套175cm高的鞋柜使用更方便,节省装修成本。



白色的地板和木质的橱柜形成视觉上的呼应,简洁自然。而且得益于不同立面的隔断设计,一进门就能看到落地窗而不是客厅,视野非常开阔。



以适当的比例配色




从玄关进入功能区,你可以拥抱自然舒适的居住氛围。这一切都要归功于米色的配色。墙壁、顶面和地板都是米色的。
厨房

厨房的主题是绿色,就连橱柜的墙面也铺上了浅绿色的瓷砖,不仅丰富了空间的细节,也给小屋带来了一丝复古的感觉。



之字形的厨房区,靠近浴室墙,为休息区和客厅区留出了更多的空间。
梳妆台

厨房的对面是超大的收纳区集合,既满足了小户型的收纳需求,又为业主阿姨打造了一个小小的更衣区。藤椅和一个复古的米色盆,让这个简单的家看起来更加复古。



卧室

卧室设置在客厅区,25cm的活动地板,可以在下面存放东西,靠墙有吊顶的高柜,既扩大了储物空间,又阻挡了卫生间的噪音。



不得不说,这种将卧室设置在客厅区域的设计真的是相当有新意,让小户型有了更多的可能性。
视野
从睡眠区看整个客厅和落地窗,视野特别开窗。也许房子更小,但这是这对中年夫妇最舒适的家。



总体布局

可以看到,在设计师的巧妙布局下,整个功能区分为睡眠区、客厅区、书桌区,每1的空间都得到了最充分的利用。



虽然房主是一对中年夫妇,但这样的公寓对年轻人很有吸引力。
起居室

封闭式的客厅空间有一种舒适宽敞的氛围,足以满足主人和妻子的需求。沙发的使用也充满了别出心裁,下面有储物,上面有靠垫,让沙发感觉很舒服。



有了稍高的玻璃茶几,这个区域也成为了主人和他妻子的餐厅。
书房

从沙发一楼延伸出来的桌面,变成了学习区,胡桃木色的材质,搭配一套休闲椅,让喜欢在家看书的主人大叔过上舒适的退休生活。



透过打褶的窗户,可以看到窗外北京闪烁的霓虹灯。为什么要追求人生中孤独的高处,俯瞰城市风光,快乐?



装饰品

主人的叔叔之前从事艺术相关的工作,所以能看到房子里的画和雕塑,都很有艺术感。



有了高台面的书柜和橱柜,整个功能区有了最舒适的居住氛围。
卫生间

卫生间布置在入户门左侧,采用暗门设计,弱化了门框的存在感。同时,它既是厕所又是洗衣房。



利用洗脸池柜的高度,设计师放入了一台洗衣烘干机。同时在淋浴区和卫生间区之间增加了一组玻璃隔断,完美融合了干湿分离的设计。
本次的家访到此结束。还想看更多,给我点个关注!
▼▼▼

-END-

免责声明:文章部分文字、图片、视频等内容包括但不限于以上所提及来源于网络,如有侵权,请联系删除,版权归原作者所有。
作者: 蔫0000闹    时间: 2022-5-15 08:47
52退休?
作者: 博爱谠    时间: 2022-5-15 08:47
转发了




欢迎光临 邳州信息网 (https://www.pzxxw.com/) Powered by Discuz! X3.4