邳州信息网

标题: 看了她家的75㎡北欧风,才知道什么叫岁月静好,温馨感溢出屏幕 [打印本页]

作者: 好家好生活    时间: 2022-5-19 07:39
标题: 看了她家的75㎡北欧风,才知道什么叫岁月静好,温馨感溢出屏幕
今天家访的是一套北欧风格小户型的两居室案例,建筑面积75平米。整个房子以简约的北欧风格为基调,加入一些色彩鲜艳的软装作为点缀。整个空间呈现出一种轻松舒适的感觉,整体搭配也很优雅清新。让我们来看看吧。希望你喜欢!



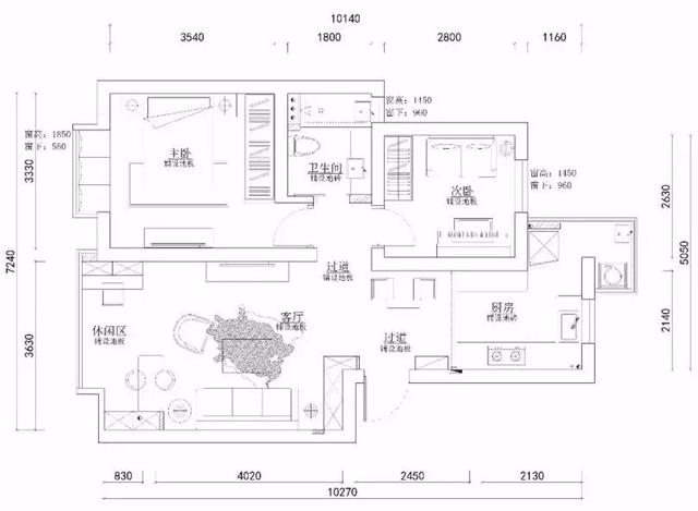
建筑的平面图
玄关

玄关正对餐厅,玄关靠近厨房的一侧放了一个水桶柜,另一侧与客厅相连,做了一个嵌入式的柜子。橱柜一直延伸到客厅,储物空间更加充裕。



客厅餐

简单的餐桌椅靠墙摆放,墙上挂着一幅大型装饰画作为点缀。顶部的天花板用来隐藏空调和电线。



我很喜欢客厅的整体搭配,灰绿白的搭配。客厅外还有一个书房休息区,用作吧台和柜子后非常实用。



客厅顶部只在四周做了吊顶,中间选择了若干个筒灯来代替主灯,让客厅看起来更加简洁。地面的木地板给客厅带来了温暖的质感。



厨房

厨房位于入口门的另一侧。由于厨房还通向生活阳台,所以选择了L型橱柜布局方案。整体橱柜以白色为主,加上水泥地面,看起来简单轻松。



卧室

主卧的配色简单大方。不能砸的飘窗设计成休闲区,舒适的靠垫和窗帘,看起来很舒服很舒服。






卧室的衣柜是嵌入式的,然后用窗帘代替门,这样拿衣服会更方便。加了窗帘后,就不用太担心掉灰了。
书房

次卧的主人用作书房。目前做了一个木质书柜和一个沙发床,书柜加了一些玻璃门,比较实用。



卫生间

卫生间的设计是干湿分离,马桶和洗手池相对,淋浴房靠着窗户。一个大的镜柜可以让浴室看起来更宽敞。



本次的家访到此结束。还想看更多,给我点个关注!如果你也想要这样一个温暖的家,点击下面蓝字报名。
▼▼▼

全国500位业主_申请免费设计名额

-END-


免责声明:文章部分文字、图片、视频等内容包括但不限于以上所提及来源于网络,如有侵权,请联系删除,版权归原作者所有。




欢迎光临 邳州信息网 (https://www.pzxxw.com/) Powered by Discuz! X3.4