邳州信息网
标题:
广州宝妈的55㎡新家,全屋井井有条,家里5口人从不喊挤
[打印本页]
作者:
好家好生活
时间:
2022-5-30 08:56
标题:
广州宝妈的55㎡新家,全屋井井有条,家里5口人从不喊挤
每天一个美好而精致的家!
设计 / 品质 / 生活 / 热爱
广州一个寸土寸金的城市,在这里买一套50平米的房子真的很不容易。女家在广州打拼,为了孩子上学方便,买了这套55的“旧破小”。
平时两位业主工作都很忙,家里的两个孩子都由奶奶照顾和接送。房子装修好以后,将有三代五口人住,这对设计师来说是一个很大的挑战。现在,就让我们一起去看看女主的小家,看看房子是如何“重生”的吧!
//设计亮点//
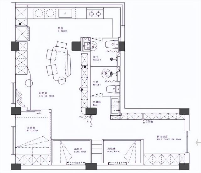
全屋面积约55㎡,是一个“手枪式”户型,采光通风较差。好在房子是框架结构,内墙可以拆改。
主要改造设计如下:
拆除所有室内墙壁,重新规划功能区域;把门厅和原来的餐厅改成多功能厅和儿童房,儿童房旁边做一个独立的主卧。
将客厅和餐厅合二为一,定制两面墙的书柜、收纳柜、卡座沙发,房间中间放一张大木桌,功能更实用。
将厨房和阳台合二为一,设计L型橱柜,增加清洁面积,提高空间利用率。
客餐厅
在原来的公寓里,客人餐厅的宽度很窄,如果定制收纳柜,就很难放置沙发和餐桌。为了解决这个问题,设计师将客用餐厅和卧室对调,将客用餐厅和阳台打通,让公共空间变得开放通透。
餐厅和客厅合二为一空间,两侧墙面定制收纳柜、卡座沙发、大书柜,保证功能性和收纳容量。白色收纳柜,金属短柄,简洁精致;柜子左侧是双人定制沙发,右侧延伸至厨柜,不浪费空间。
书柜区的墙面刷上了薄荷绿的墙漆,搭配浅粉色和浅蓝色的柜门,让客餐厅更有童趣。女方希望家庭能像图书馆一样给两个孩子营造更好的学习氛围;餐厅的大型实木餐桌不仅具有用餐功能,还为孩子们提供了学习、绘画、做工艺品的宽敞空间。
厨房
原本厨房面积比较小,只有3㎡左右,定制橱柜比较困难。设计师打通了厨房和阳台,沿着厨房的采光面定制了L型超长橱柜,预留了洗衣机和烘干机的位置,丰富了整体功能。为了不影响厨房区域的采光,室内的烟机是升降式的,不用的时候可以嵌入柜桌,视觉感会更干净。
厨房自然分为两个区域:1.左侧是清洁区,台面与餐厅的收纳柜相连,清洁用品也可以直接放在旁边的柜子上;2.右侧是厨房的主要功能区,灶台规划在厨房的最内侧,可以防止烹饪油烟飘入客餐厅。
主卧
主卧规划在沙发旁边,是一个不到4㎡的独立空间。整个榻榻米设计都是在房间里做的。为了不影响客人餐厅的使用空间,设计师在主卧入口处设计了一个推拉门,左右滑动即可打开。用起来很方便。
主卧虽然面积不大,但储物空间丰富,主要分为两部分:床头后面定制一个全墙衣柜,柜子中间预留一排开放式柜子,可以替代床头柜的功能;榻榻米床下面,也是过季的床上用品和衣服的收纳空间。
墙的左侧开了一个长方形的室内窗户,可以将主卧的自然光引入儿童房。
儿童房
儿童房门口安装PVC折叠门,既解决了私密性,又不占太多空间,非常适合小户型选择。在室内设计高低床,可以充分利用竖向空间,两个孩子和一个老人也不会觉得拥挤。
矮床主要分为四个部分,中间用橱柜楼梯隔开:
左下:儿童活动区,里面有黑板和玩具,类似一个小游乐场;
左上:男生休息空间,扶手淡蓝色,墙上安装壁灯;
右下:孩子奶奶的床,免去了爬上爬下的繁琐;
右上:女生休息空间用粉色装饰,满满的少女心。
室内做平面吊顶,无主灯的设计,利用温暖的筒灯和柔和的壁灯,营造温馨轻松的生活氛围。
在每张床的侧墙上,增加了一个长方形的壁龛,代替了床头柜的功能,可以用来放置水杯、手机等物品。
小小的儿童活动区,承载着两个孩子的快乐童年。兄妹俩喜欢在这里玩玩具、过家家,小小的空间也给他们带来了满满的安全感。
蓝色床和粉色床之间的走廊区域还增加了一扇PVC折叠门。当孩子们长大后,他们都可以有一个私人的独立的生活空间。
多功能房间
儿童房旁边,是一个入宅的过渡空间,类似玄关的设计。在这个区域的左右两侧,定制了高收纳柜:左侧柜的柜门采用镜面材质,方便女生日常练舞;右侧的柜子和儿童房的衣柜是一体式设计,中间走廊用窗帘隔开,保证私密性。
大镜面柜门也放大了入口区域的空间视觉感,让人一进家门就觉得非常明亮,也在一定程度上消除了小户型的拥挤感。
卫生间
考虑到家中常住人口较多,设计师借用了客餐厅的部分面积,在屋内规划了两个卫生间,日常使用会更加方便。两个卫生间的配置基本相同,规划了洗脸台、卫生间和淋浴区,干湿区用不透明玻璃隔开。
次卫还增加了双面盆和双水龙头,可以容纳两个人同时洗漱,缓解了早高峰时段的使用压力。
本次的家访到此结束。还想看更多,给我点个关注!如果你也想要这样一个温暖的家,点击下面蓝字报名。
▼▼▼
全国500位业主_申请免费设计名额
-END-
免责声明:文章部分文字、图片、视频等内容包括但不限于以上所提及来源于网络,如有侵权,请联系删除,版权归原作者所有。
作者:
管玉珂
时间:
2022-5-30 08:57
这是55平?
作者:
bibbb
时间:
2022-5-30 08:58
装修
欢迎光临 邳州信息网 (https://www.pzxxw.com/)
Powered by Discuz! X3.4