邳州信息网

标题: 135㎡顶楼复式带阁楼设计,浪漫法式风情,这套案例能打几分? [打印本页]

作者: 大中华0333    时间: 2022-8-12 15:45
标题: 135㎡顶楼复式带阁楼设计,浪漫法式风情,这套案例能打几分?
今天小编跟大家分享的这套案例比较特殊,是一套是顶层带阁楼的复式案例,房屋用浪漫的粉紫色色调,营造出一个梦幻温馨的家居环境,一起来看看这个案例。

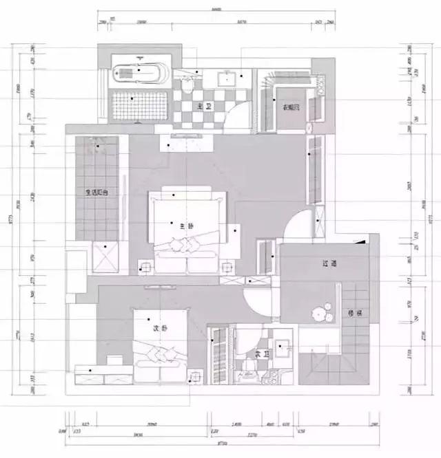
面积:135㎡

户型:三室一厅

平面布置图





客厅



客厅组合式沙发设计,不成套的沙发搭配起来反而有一种和谐美,围合设计,中间一张实木茶几,端庄大方。



客厅沙发背景墙用粉紫色护墙板装饰,蓝灰色+米白色绒面沙发,优雅大方。



客厅面积本来就不小,加上都用白色装饰,整个空间看起来非常大。



沙发背景墙还有空间,摆放一套书桌椅,桌上摆放铜制鸟笼装饰,成了一个精致的小书房空间。

餐厅



客厅通往餐厅的通道,一边是嵌入式柜子设计,一边是厨房,充分利用每个角落做好收纳。





餐厅的空间延续客厅沙发背景墙的装修风格,圆形的吊顶和圆形餐桌相互呼应,浅蓝色餐椅搭配,给人清新舒适的用餐感受。

楼梯



过道之处摆放端景台,神秘的法式挂画装饰,利用楼梯下方处空间做收纳,空间利用极为合理。



楼梯的扶手用白色原木装饰搭配铁艺护栏,营造出法式风格的质感。

阁楼



一上到阁楼,我们看到象牙白三角柜搭配艺术挂画装饰,古典优雅极具法式风情。

主卧



卧室用人字形拼接木地板装饰,脚感更加舒适,更适合卧室的装修设计。





浅紫色是卧室的主色调,加入深蓝、橙色等颜色,浪漫之中又带有静谧感。





除了一整面衣柜墙设计,柜子尽头是一个步入式的小衣帽间。



主卧电视背景墙的后面是主卫,卫生间采用干湿分离设计,壁挂式马桶上方做收纳,实用性超强!

次卧



次卧有一个大大的飘窗,采光充足,平时也能坐在窗台上看看书满足休闲娱乐。





床头背景墙用蓝色碎花墙纸装饰,素雅大方,床头柜出现了跟客厅一样的铜制鸟笼,整体感十足。

↙ 5秒帮你算出家里装修价格, 戳原文链接

买了房不知道怎么装修?

推荐一个超赞的微信订阅号:绘本家居


长按二维码关注
作者: gushandonglu    时间: 2022-8-12 15:47
墙纸毁了一套房
作者: 穆勒1997    时间: 2022-8-12 15:48
可怕的香芋紫
作者: LXY茜妹儿    时间: 2022-8-12 15:49
过时的装修,看点在哪里?
作者: 溃不成军betray    时间: 2022-8-12 15:50
我想看看楼梯,我家准备装修了
作者: 491276464    时间: 2022-8-12 15:51
不可能135,我家120复试,比这小多了
作者: 单李佛    时间: 2022-8-12 15:52
貌似房间的柜门和抽屉都打不开
作者: 蜗牛耍漂移    时间: 2022-8-12 15:53
转发了
作者: 我是胖熊11    时间: 2022-8-12 15:54
转发了
作者: 饭没了还饿    时间: 2022-8-12 15:56
转发了




欢迎光临 邳州信息网 (https://www.pzxxw.com/) Powered by Discuz! X3.4