邳州信息网
标题:
北京夫妻的“豪宅”太治愈了吧,50㎡一尘不染,全屋收纳井井有条
[打印本页]
作者:
好家好生活
时间:
2023-1-22 16:26
标题:
北京夫妻的“豪宅”太治愈了吧,50㎡一尘不染,全屋收纳井井有条
本次分享的案例来自北京,一对小夫妻通过自己的努力完成了许多人遥不可及的梦想。一套的50㎡“豪宅”。
夜深时,你是否会想起,你有多久没看过老家上空的星星。你会在哪天日出的时刻,望着北京街道中匆忙身影,想起曾经的自己。
在北京这座城市中经历过太多,他们也承受过失败,感受过挫折。如今他们对自己的生活不再苛刻,但也不能缺少应有的仪式感。因此他们在装修新房时,不敢浪费哪怕是一点点的空间。所以他们的家在合理的规划下,做到了井井有条,温馨舒适!
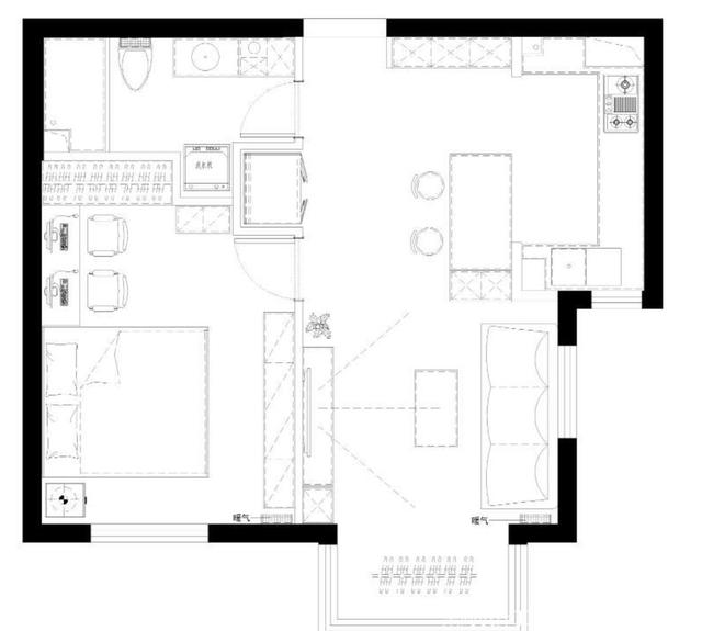
房屋信息/House decoration
位置:北京
面积:50㎡
户型:一室两厅一卫
风格:日式原木风
图源:柒尚设计
业主需求:
需要足够多的收纳空间
要有一个舒适的大浴缸
有一个居家办公的区域
温馨舒适的空间体验
改造布局如下:
调整卫生间的墙体,纳入洗衣机、冰箱的功能需求。
餐厨区采用一体化设计,增加公共区域的通透性,并强化家人之间的互动性。
南阳台作为一个休闲区使用,纳入到室内。
入户
卫生间墙体结构调整时,
双门冰箱嵌入卧室门和卫生间门之间。
这样不仅让空间变得整洁,也方便了厨房区域的使用。
当然,冰箱顶部的空间也没有浪费
。设计了一套吊柜后,存放杂物或生活用品特别方便。
鞋柜设计在入户门右侧,一门到顶
,预留换鞋区,不仅带来超强收纳能力,还提高了使用舒适度。同时进门挂包也很方便。
鞋柜收纳陈列,无论是挂衣服,收纳鞋子,还是家用工具,都得到了合理的收纳。而且镂空和底部隐藏了自动感应灯,也为晚上回家提供了方便。
餐厨区
厨房区与原有结构融为一体。
这样一来增加了空间的通透性,二来也加强了生活的互动性
。同时也让两个空间起到了互补的作用。
餐厅和客厅之间,用一组镂空的装饰框做隔断,既补充了餐厅的收纳,又保持了视觉上的分隔。而一个1.5m*80m的原木餐桌配置,在满足多人需求的同时,也弥补了厨房操作台面积。
空间面积再小,也不缺少生活的仪式感。一盏灯,一束绿植,足以点缀一种精致的生活姿态。
在厨房原有空间的基础上,设计了U型橱柜,再搭配一套L型吊柜,充分利用每一个空间,实现人性化操作。同时,洗碗机的增加也再次彰显了高品质的生活方式。
起居室
无论是隔断柜边的照片墙,还是电视上的手工玩具,整个空间可以说是堆满了杂物。但通过合理的收纳,再加上主人自律的生活方式,不仅不会有杂乱感,还能让空间井井有条。
隔断柜的上下两部分作为独立的柜子,满足了一些生活用品的收纳需求。
大大小小的玩具,不仅仅是主人珍藏的藏品,更见证了主人的一些人生经历。
沙发采用拼色设计,可以在视觉上拉伸空间的高度。在上面的百叶窗后面,有一个透气的小窗户。
并入客厅后,阳台作为独立的休闲区。放上躺椅,你可以悠闲地度过一整天。同时,边上的宠物屋也给了我的两只狗狗一个舒适的小窝。
卧室
卧室和外面一样,看起来杂乱无章,但一切都井井有条。在空间以原木风为主的情况下,即使墙面大面积留白,空间依然充满温度。
抛弃一个床头柜,选择一个双人书桌,完美解决了主人和妻子一起办公的需求。
同时,侧边衣柜的开放式隔层设计和一套抽屉柜配置也解决了日常收纳需求。
卫生间
考虑到卫生间属于深色卫生间结构,卫生间的墙体通体使用小白砖,地面铺设灰色小方砖,保持了空间明亮的同时,也深化了空间的层次感,加强了视觉感受。
超大浴缸,以及洗衣机、烘干机的设计,既能满足基本的居住需求,又能增加居住舒适度。
纵观整个案例,虽然户型不大,只有一个房间,但实际使用起来确实很精致舒适。当然这也得益于主人和他妻子良好的生活方式,所以还是挺让人佩服的。
本文至此就分享到这里了,希望这套案例给大家一些参考。欢迎在评论区发表你的看法,感谢阅读!
-END-
免责声明:文章部分文字、图片、视频等内容包括但不限于以上所提及来源于网络,如有侵权,请联系删除,版权归原作者所有。
欢迎光临 邳州信息网 (https://www.pzxxw.com/)
Powered by Discuz! X3.4